Обяви За нас Контакти
Продава 2-СТАЕН
град Варна, Младост 1
116 900 €
228 636.53 лв.

(1 538 €, 3 008.07 лв./m2)
Цената е с включено ДДС
История на цената
Публикувана в 18:01 на 27 март, 2026 год.
Обявата е посетена 62 пъти.
Площ:
76 m2
Етаж:
2-ри от 18
Газ:
НЕ
ТEЦ:
НЕ
Строителство:
Тухла, Ще бъде въведен в експлоатация 2026 г.

Описание на имота:


LUXIMMO FINEST ESTATES: www.luximmo.bg
Представяме комфортен двустаен апартамент в нов жилищен комплекс с модерна архитектура и мащабна концепция, разположен в кв. 'Младост 1'.

Локацията е изключително удобна в близост до Delta Planet Mall, медицински център, училища, детски градини, паркове, стадион Младост , както и с бърз достъп до основни пътни артерии и градски транспорт.

Пред Акт 15! Акт 16 - ноември 2026 г.

Комплексът ще предлага луксозно завършени общи части, парк за отдих, търговски обекти на територията и осигурено паркиране. Състои се от 2 сгради, всяка с по 189 имота и с общо 246 открити паркоместа, 67 паркоместа в покрит паркинг, както и 73 паркоместа в 69 гаражни клетки.

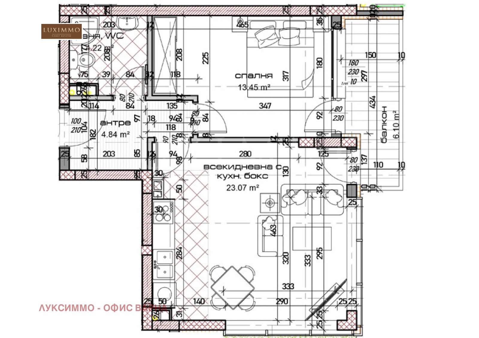
Жилището е разположено на 2-ри етаж и е с обща площ от 76.08 кв.м.

Разпределение:
Антре;
Дневна с кухненски бокс;
Спалня;
Баня с тоалетна;
Тераса с излаз от двете стаи.

Степен на завършеност:
Под циментова замазка;
Стени бяла гипсова мазилка;
Тавани гипсова шпакловка;
Санитарни помещения на мазилка и замазка, без оборудване;
Входна врата блиндирана.

Инсталации:
Ел. инсталация напълно изградена с електромер;
ВиК външна 100% завършена, вътрешна на тапа;
Изводи за климатици във всички стаи.

Предимства:
Утвърден и предпочитан район;
В близост до Delta Planet Mall;
Отлична инфраструктура и транспортни връзки;
На терен от 10 декара комплексът ще разполага с парк;
Търговски обекти на територията.

Очакваме Вашето запитване

Ако желаете да организирате оглед на имот, който Ви интересува, или да посетите някой от нашите офиси, моля свържете се с нас. За да уговорите ден и час за среща или оглед, можете да се обадите на посочения в обявата телефон или да изпратите запитване чрез електронната поща. Нашият консултант ще Ви съдейства с всички необходими подробности и ще уговори удобно за Вас време.

Търсите подходящия за Вас имот?

Не се колебайте да се свържете с нас и да ни разкажете за Вашите ...

За повече информация свържете се с нас и цитирайте референтния номер на имота. Моля, кажете, че сте видeли обявата в този сайт.
Референтен номер: VAR-139067
Тел: 0882 815 081, 052 813 655
Отговорен брокер:Катя Йорданова
Особености
Тухла
Асансьор
Контрол на достъпа
За контакт:
0882815081
Брокер:
Катя Йорданова
0882 815 081
Още оферти от брокера: Продава | Дава под наем | Купува | Наема
Агенция:
ЛУКСИММО - ОФИС ВАРНА
052 695 456; 0886 021 471
ЛУКСИММО - ОФИС ВАРНА logo
Медал за прослужено време
В imot.bg от 2011 г.
luximmovarna.imot.bg
Адрес:
област Варна, гр. Варна, бул. Мария Луиза 10
http://www.luximmo.bg
ИЗПРАТИ ЗАПИТВАНЕ
ИЗПРАТИ ЗАПИТВАНЕТО

Продава 2-СТАЕН
град Варна, Младост 1
Обява: 1b177462728597409

116 900 €
228 636.53 лв.
История на цената
(1 538 €, 3 008.07 лв./m2)

Цената е с включено ДДС
ЗАПАЗИ ОБЯВАТА

Местоположение: град Варна, Младост 1

Допълнителни данни за имотите в района и сравнение с други райони

Покажи

Период

и 3 месеца

* Средните цени са определени чрез медианна стойност